Vanzare spatiu industrial in Arad, Micalaca, 4075 mp


Arad, Micalaca
ID: 2047356
Listare apartinand "ACASA ARAD"
COMISION 0%

Oportunitate: Hală de producție și depozitare cu birouri în Arad


PRET VANZARE: 3.500.000
PRET m2 : 858.9
MOȘ FLORIN
MOȘ FLORIN
Manager
Solicită mai multe informații
CARACTERISTICI
Bai
7
An constructie
2013
Tip imobil
Hală
Disponibilitate
Imediat
Etaj
Parter
Înălțime interioară
12
Bucatarii
1
Dulapuri
2
Clasă birouri
A
Comp.
Parțial compartimentat
Locuri de parcare
10
Camere
20 camere
Supr. construită
4075 mp
Supr. teren
7176 mp
Suprafață birou
183 mp
Unitate Suprafață
mp
Suprafata
4075 mp
Etaj
Parter / P
DESCRIERE
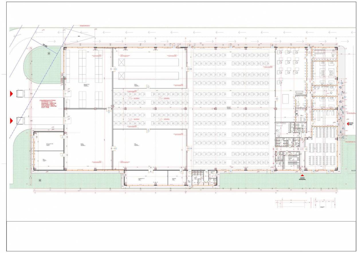
Avem plăcerea să vă oferim în exclusivitate o hală de producție și depozitare cu birouri în Municipiul Arad, în zona comercial-industrială Micălaca Sud.

Caracteristici:
Teren: 7.176 mp
Construcție: 4.075 mp
Dock-uri încărcare TIR: 2 buc
An construcție: 2013

Dotări:
Bazin PSI și Autorizație ISU
Panouri Fotofoltaice putere 350 MWh
Suflante aer cald și chillere.

Utilități prezente: energie electrică, gaze naturale, apă și canalizare.
Vecini: CEFIN Trucks, Modelleisenbahn, Dedeman, Altex, CitOne, HighPlast

Detalii constructive:
Stâlpi de susținere din beton armat, închideri perimetrale din plăci pefabricate din BA, tâmplărie din aluminiu.

Localizare și dotările fac imobilul ideal pentru o gamă largă de activități comerciale, de producție și de depozitare.
Profitați de o soluție rapidă și la cheie pentru afacerea dumneavoastră.

Pentru vizionare și detalii, vă rog să mă apelați la numărul:
0721356746
Florin Moș
VIDEO PREZENTARE
FACILITĂȚI
Alte caracteristici spațiu industrial
  • Acces auto
  • Acces TIR
  • Curent trifazic (380V)
  • La șosea
  • Luminatoare
  • Oportunitate de investiții
  • Panouri solare
  • Posibilitate de compartimentare
  • Sistem de alarmă
  • Teren împrejmuit
  • Uși de acces
  • Vestiar
Amenajare străzi
  • Străzi asfaltate
  • Iluminat stradal
  • Mijloace de transport în comun
Parcare
  • Parcare deschisă
Utilități teren
  • Apă
  • Canalizare
  • Curent
  • Gaz
  • Irigații
LOCALIZARE
CARACTERISTICI
Bai
7
An constructie
2013
Tip imobil
Hală
Disponibilitate
Imediat
Etaj
Parter
Înălțime interioară
12
Bucatarii
1
Dulapuri
2
Clasă birouri
A
Comp.
Parțial compartimentat
Locuri de parcare
10
Camere
20 camere
Supr. construită
4075 mp
Supr. teren
7176 mp
Suprafață birou
183 mp
Unitate Suprafață
mp
Suprafata
4075 mp
Etaj
Parter / P
DESCRIERE
Avem plăcerea să vă oferim în exclusivitate o hală de producție și depozitare cu birouri în Municipiul Arad, în zona comercial-industrială Micălaca Sud.

Caracteristici:
Teren: 7.176 mp
Construcție: 4.075 mp
Dock-uri încărcare TIR: 2 buc
An construcție: 2013

Dotări:
Bazin PSI și Autorizație ISU
Panouri Fotofoltaice putere 350 MWh
Suflante aer cald și chillere.

Utilități prezente: energie electrică, gaze naturale, apă și canalizare.
Vecini: CEFIN Trucks, Modelleisenbahn, Dedeman, Altex, CitOne, HighPlast

Detalii constructive:
Stâlpi de susținere din beton armat, închideri perimetrale din plăci pefabricate din BA, tâmplărie din aluminiu.

Localizare și dotările fac imobilul ideal pentru o gamă largă de activități comerciale, de producție și de depozitare.
Profitați de o soluție rapidă și la cheie pentru afacerea dumneavoastră.

Pentru vizionare și detalii, vă rog să mă apelați la numărul:
0721356746
Florin Moș
VIDEO PREZENTARE
FACILITĂȚI
Alte caracteristici spațiu industrial
  • Acces auto
  • Acces TIR
  • Curent trifazic (380V)
  • La șosea
  • Luminatoare
  • Oportunitate de investiții
  • Panouri solare
  • Posibilitate de compartimentare
  • Sistem de alarmă
  • Teren împrejmuit
  • Uși de acces
  • Vestiar
Amenajare străzi
  • Străzi asfaltate
  • Iluminat stradal
  • Mijloace de transport în comun
Parcare
  • Parcare deschisă
Utilități teren
  • Apă
  • Canalizare
  • Curent
  • Gaz
  • Irigații
LOCALIZARE