Vanzare spatiu industrial in Arad, Nord, 333 mp


Arad, Nord
ID: 1423675
Listare apartinand "ACASA ARAD"
COMISION 0%

Spațiu comercial 333 mp


PRET VANZARE: 420.000
PRET m2 : 1235.29
+ 19% TVA
MOȘ FLORIN
MOȘ FLORIN
Manager
Solicită mai multe informații
CARACTERISTICI
Bai
4
An constructie
2010
Tip imobil
Clădire birouri
Disponibilitate
Imediat
Etaj
Parter
Înălțime interioară
5
Dulapuri
1
Comp.
Compartimentat
Locuri de parcare
15
Camere
12 camere
Supr. construită
333 mp
Supr. teren
2561 mp
Suprafață birou
306 mp
Unitate Suprafață
mp
Suprafata
306 mp
Etaj
Parter / P
DESCRIERE
Oferim spre vânzare un spațiu comercial în Parcul Industrial UTA2 ce se poate prelua cu chiriaș ce achită chirie 3000 eur/lună până în decembrie 2026.
Spațiu se poate preda liber de contractul de închiriere cel mai devreme în ianuarie 2027.

Parcul Industrial UTA2 este amplasat în partea de Nord a Municipiului Arad, cu acces direct din E68 (DN7, Centură Nord).

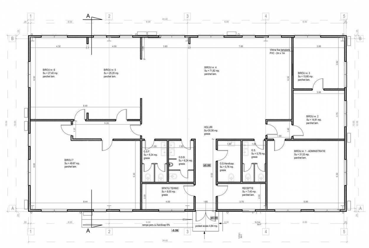
Imobilul este confecționat din panouri sandwich termoizolante și este compartimentat astfel:
– recepție
– 6 birouri
– 4 grupuri sanitare
– holuri
– spațiu tehnic


Suprafață construită: 333 mp
Suprafață teren: 2.561 mp

Prețul mai include și:
– 12 locuri de parcare (autoturisme)
– aprox 2.000 mp spațiu verde
- incintă împrejmuită

Caracteristicile de mai sus fac spațiul pretabil și pentru următoarele activități:
– birouri
– producție
– depozitare
– loc de joacă pentru copii

Important!
Proprietatea este scutită de impozite pe toată durata de existență a titlului de Parc industrial acordat conform ORDINULUI nr. 325 din 15 octombrie 2007.

Pentru detalii, apelați 0721356746. Florin Moș
FACILITĂȚI
Alte caracteristici spațiu industrial
  • Acces auto
  • Acces TIR
  • Curent trifazic (380V)
  • La șosea
  • Oportunitate de investiții
  • Panouri solare
  • Sistem de alarmă
  • Teren împrejmuit
  • Uși de acces
  • Vestiar
Amenajare străzi
  • Străzi asfaltate
  • Iluminat stradal
  • Mijloace de transport în comun
Parcare
  • Parcare deschisă
Utilități teren
  • Apă
  • Canalizare
  • Curent
  • Gaz
LOCALIZARE
CARACTERISTICI
Bai
4
An constructie
2010
Tip imobil
Clădire birouri
Disponibilitate
Imediat
Etaj
Parter
Înălțime interioară
5
Dulapuri
1
Comp.
Compartimentat
Locuri de parcare
15
Camere
12 camere
Supr. construită
333 mp
Supr. teren
2561 mp
Suprafață birou
306 mp
Unitate Suprafață
mp
Suprafata
306 mp
Etaj
Parter / P
DESCRIERE
Oferim spre vânzare un spațiu comercial în Parcul Industrial UTA2 ce se poate prelua cu chiriaș ce achită chirie 3000 eur/lună până în decembrie 2026.
Spațiu se poate preda liber de contractul de închiriere cel mai devreme în ianuarie 2027.

Parcul Industrial UTA2 este amplasat în partea de Nord a Municipiului Arad, cu acces direct din E68 (DN7, Centură Nord).

Imobilul este confecționat din panouri sandwich termoizolante și este compartimentat astfel:
– recepție
– 6 birouri
– 4 grupuri sanitare
– holuri
– spațiu tehnic


Suprafață construită: 333 mp
Suprafață teren: 2.561 mp

Prețul mai include și:
– 12 locuri de parcare (autoturisme)
– aprox 2.000 mp spațiu verde
- incintă împrejmuită

Caracteristicile de mai sus fac spațiul pretabil și pentru următoarele activități:
– birouri
– producție
– depozitare
– loc de joacă pentru copii

Important!
Proprietatea este scutită de impozite pe toată durata de existență a titlului de Parc industrial acordat conform ORDINULUI nr. 325 din 15 octombrie 2007.

Pentru detalii, apelați 0721356746. Florin Moș
FACILITĂȚI
Alte caracteristici spațiu industrial
  • Acces auto
  • Acces TIR
  • Curent trifazic (380V)
  • La șosea
  • Oportunitate de investiții
  • Panouri solare
  • Sistem de alarmă
  • Teren împrejmuit
  • Uși de acces
  • Vestiar
Amenajare străzi
  • Străzi asfaltate
  • Iluminat stradal
  • Mijloace de transport în comun
Parcare
  • Parcare deschisă
Utilități teren
  • Apă
  • Canalizare
  • Curent
  • Gaz
LOCALIZARE