Vanzare spatiu comercial in Arad, Ultracentral, 1050 mp


Arad, Ultracentral
ID: 2933595
Listare apartinand "ACASA ARAD"
COMISION 0%

Clădire ultracentrală Arad | lângă Teatru | NU este Monument!


PRET VANZARE: 720.000
PRET m2 : 685.71
NEGOCIABIL
Sebastian Nica
Sebastian Nica
Consultant imobiliar
Solicită mai multe informații
CARACTERISTICI
An constructie
1900
Etaje cladire
1
Tip imobil
Casă / Vilă
Disponibilitate
Imediat
Etaj
Demisol
Trafic pietonal
Intens
Lungime deschidere strada
17
Supr. construită
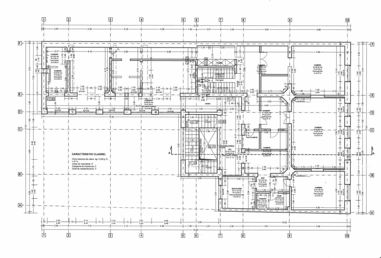
1050 mp
Supr. teren
1418 mp
Unitate Suprafață
mp
Suprafata
1050 mp
Etaj
Demisol+Parter+1 / 1S+P+1E+2Th
Fereastră
12 m
DESCRIERE
Oportunitate Investiție | Clădire Ultracentrală Arad | Lângă Teatru | NU este Monument!
Activ imobiliar care să permite o reconfigurare totală fără restricțiile specifice monumentelor istorice. Această clădire situată în inima Aradului reprezintă pânza albă perfectă pentru un proiect rezidențial de lux, un hub de birouri sau o clinică medicală de prestigiu.

Vă prezentăm spre achiziție o proprietate strategică, situată ultracentral, lângă Teatrul de Stat din Arad – o zonă cu trafic pietonal intens și vizibilitate maximă.

Această clădire este ideală pentru dezvoltatorii care doresc să creeze un proiect reprezentativ, beneficiind de un teren generos și de o structură versatilă.

Date-cheie pentru Investitori:
Flexibilitate urbanistică: clădirea NU este încadrată ca monument istoric, oferind un proces de autorizare mult mai rapid și simplu.
Suprafață teren: 1.418 mp (unul dintre cele mai mari terenuri disponibile în zona zero).
Structură: parter cu spații comerciale (vitrine la stradă) + Etaj.
Acces auto facil în curtea interioară spațioasă.

Necesită renovare completă – avantajul de a implementa de la zero standarde moderne (Smart Home, eficiență energetică, compartimentare open-space).

Potențial de extindere (opțiune strategică):
Există posibilitatea de a achiziționa o parcelă alipită de 439 mp cu acces separat din strada Unirii. Această adiție crește semnificativ valoarea proiectului prin asigurarea unui flux dublu de acces și spațiu suplimentar de dezvoltare.

Destinații recomandate:
Rezidențial premium: apartamente de tip loft sau regim hotelier de lux.
Business: hub de birouri, sediu de bancă sau reprezentanță corporativă.
Medical/Educațional: clinică privată, centru de diagnostic sau instituție de învățământ.
Retail & Leisure: restaurant gourmet, spații comerciale de tip boutique.

Detalii financiare:
Preț: 720.000 € | Comision 0% pentru cumpărător

Proprietatea reprezintă o investiție sigură, într-o locație unde valoarea terenului și a spațiului construit este într-o continuă creștere.

📞 Pentru detalii tehnice, planuri și vizionări:
Sebastian Nica – 0722 252 639
VIDEO PREZENTARE
FACILITĂȚI
Priveliște
  • Vedere spre oraș
Utilități teren
  • Apă
  • Canalizare
  • Curent
  • Gaz
LOCALIZARE
CARACTERISTICI
An constructie
1900
Etaje cladire
1
Tip imobil
Casă / Vilă
Disponibilitate
Imediat
Etaj
Demisol
Trafic pietonal
Intens
Lungime deschidere strada
17
Supr. construită
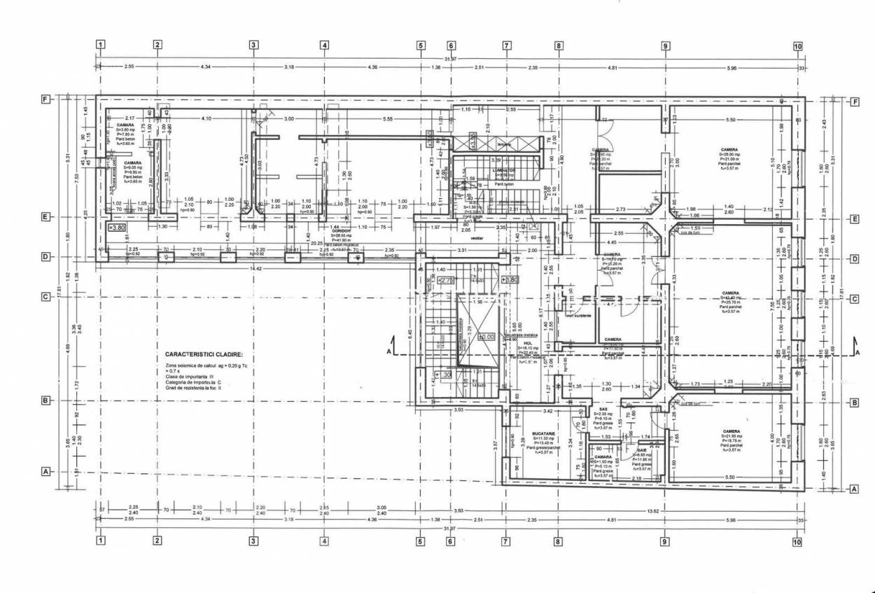
1050 mp
Supr. teren
1418 mp
Unitate Suprafață
mp
Suprafata
1050 mp
Etaj
Demisol+Parter+1 / 1S+P+1E+2Th
Fereastră
12 m
DESCRIERE
Oportunitate Investiție | Clădire Ultracentrală Arad | Lângă Teatru | NU este Monument!
Activ imobiliar care să permite o reconfigurare totală fără restricțiile specifice monumentelor istorice. Această clădire situată în inima Aradului reprezintă pânza albă perfectă pentru un proiect rezidențial de lux, un hub de birouri sau o clinică medicală de prestigiu.

Vă prezentăm spre achiziție o proprietate strategică, situată ultracentral, lângă Teatrul de Stat din Arad – o zonă cu trafic pietonal intens și vizibilitate maximă.

Această clădire este ideală pentru dezvoltatorii care doresc să creeze un proiect reprezentativ, beneficiind de un teren generos și de o structură versatilă.

Date-cheie pentru Investitori:
Flexibilitate urbanistică: clădirea NU este încadrată ca monument istoric, oferind un proces de autorizare mult mai rapid și simplu.
Suprafață teren: 1.418 mp (unul dintre cele mai mari terenuri disponibile în zona zero).
Structură: parter cu spații comerciale (vitrine la stradă) + Etaj.
Acces auto facil în curtea interioară spațioasă.

Necesită renovare completă – avantajul de a implementa de la zero standarde moderne (Smart Home, eficiență energetică, compartimentare open-space).

Potențial de extindere (opțiune strategică):
Există posibilitatea de a achiziționa o parcelă alipită de 439 mp cu acces separat din strada Unirii. Această adiție crește semnificativ valoarea proiectului prin asigurarea unui flux dublu de acces și spațiu suplimentar de dezvoltare.

Destinații recomandate:
Rezidențial premium: apartamente de tip loft sau regim hotelier de lux.
Business: hub de birouri, sediu de bancă sau reprezentanță corporativă.
Medical/Educațional: clinică privată, centru de diagnostic sau instituție de învățământ.
Retail & Leisure: restaurant gourmet, spații comerciale de tip boutique.

Detalii financiare:
Preț: 720.000 € | Comision 0% pentru cumpărător

Proprietatea reprezintă o investiție sigură, într-o locație unde valoarea terenului și a spațiului construit este într-o continuă creștere.

📞 Pentru detalii tehnice, planuri și vizionări:
Sebastian Nica – 0722 252 639
VIDEO PREZENTARE
FACILITĂȚI
Priveliște
  • Vedere spre oraș
Utilități teren
  • Apă
  • Canalizare
  • Curent
  • Gaz
LOCALIZARE